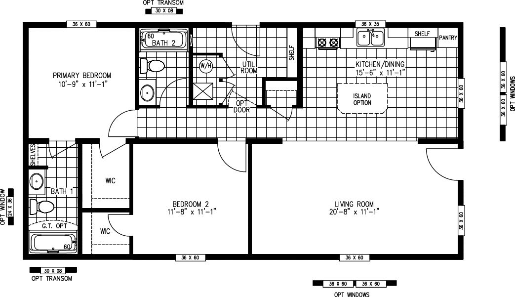
Turquoise
2 beds / 2 baths / 1,003 sq.ft. / 24x44
Photo Gallery












*The home series, floor plans, photos, renderings, specifications, features, materials and availability shown will vary by retailer and state, and are subject to change without notice.












*The home series, floor plans, photos, renderings, specifications, features, materials and availability shown will vary by retailer and state, and are subject to change without notice.